













villa
NYBYGGDA VILLOR I FINESTRAT
Alicante, Finestrat, Campana Garden
760 000 €
198 m2
3 beds
3 baths
Pool
New Build
Interested in this property?
Get in touch with our team
Om denna fastighet
NYBYGGDA VILLOR I FINESTRAT
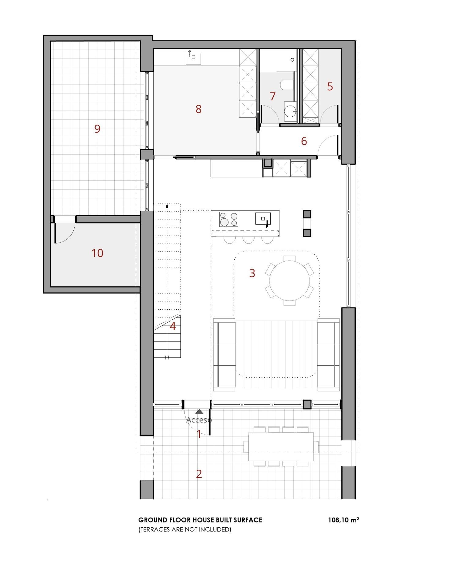
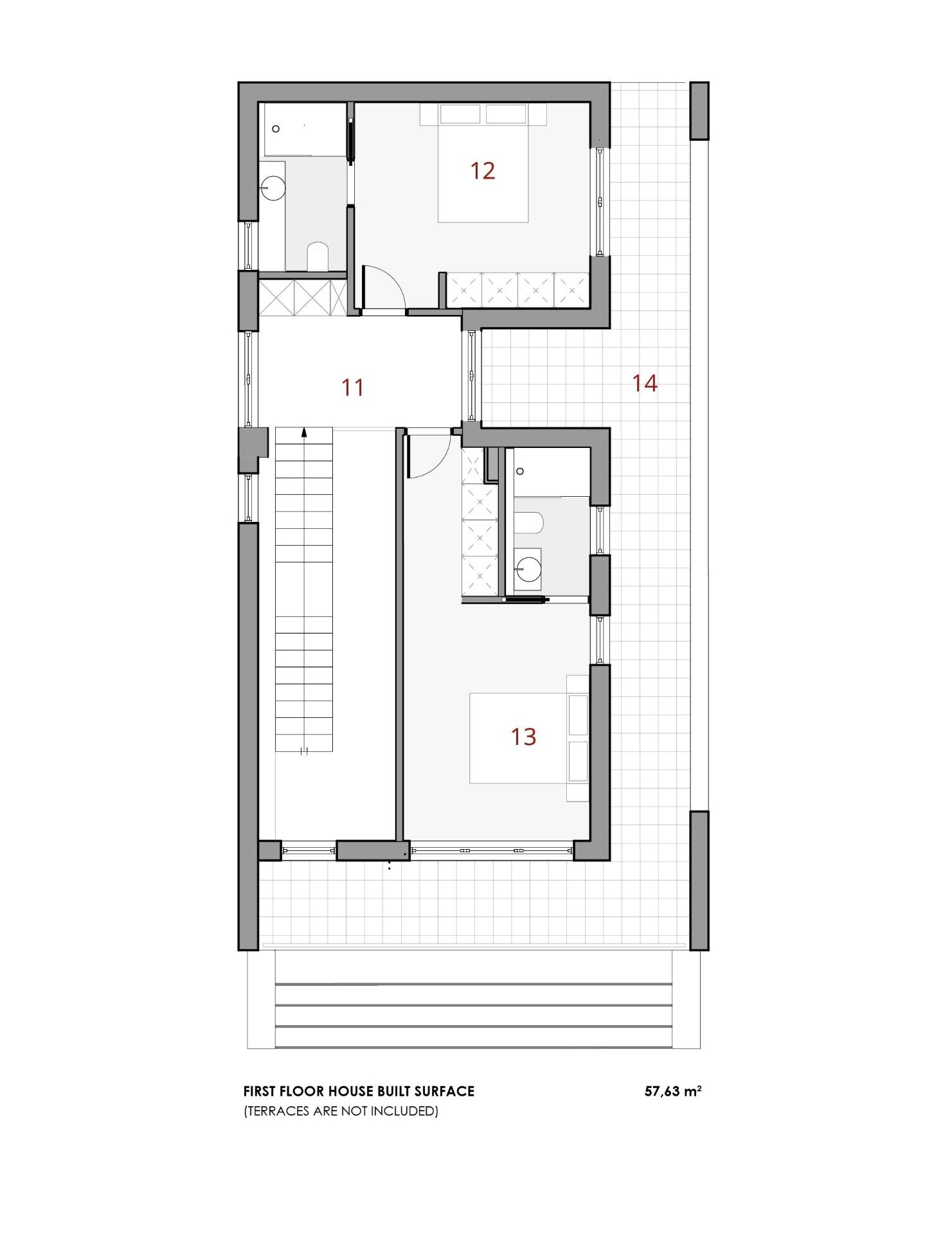
Nybyggda moderna villor i Finestrat.
Villor med 3 sovrum och 3 badrum, kök med öppen planlösning och vardagsrumsdel, terrass med magnifik utsikt över Benidorm, privat trädgård med pool och parkeringsplats.
Det är tänkt som ett helt gångbart utrymme med inre och yttre vägar som ger oberoende tillgång till varje våning. Denna design erbjuder olika perspektiv på det arkitektoniska komplexet och dess omgivning, med havet och Sierra Cortina som en pittoresk bakgrund.
Huvudentrén till villan ligger vid den nedre delen av tomten, med gott om parkering för två fordon. Ett vattenspel med solstolar introducerar dig till bottenvåningen, som kännetecknas av breda väggar prydda med murverk. En terrass sträcker sig sömlöst från vardagsrummet och möjliggörs av ett stort vikfönster. Träluckor på murade väggar ger ett delvis täckt utomhusområde för extra komfort.
Poolen, med sina akvamarina nyanser och gresitfoder, ligger intill ett trottoarområde som är tillverkat av halkfria porslinsplattor med ett träliknande utseende.
Här finns också en grillplats som kan anpassas efter användarens behov, med tillgång från en asfalterad zon genom den naturliga terrängen.
Finestrat ligger i regionen Marina Baixa på Costa Blanca, nära grannstaden Benidorm och cirka 40 kilometer från staden Alicante och den internationella flygplatsen.
Byn ligger på bergssluttningen Puig Campana och erbjuder vacker utsikt över bergen, kusten och Medelhavet.
Benidorm ligger bara fem minuters bilresa från fastigheterna och erbjuder alla tjänster du behöver, inklusive butiker, barer, restauranger, stormarknader, banker, apotek och flera privata internationella skolor.
Fastighetsdetaljer
- Nybyggnation:
- Ja
- Pris:
- 760 000 €
- Typ:
- villa
- Bostadsyta:
- 198 m²
- Sovrum:
- 3
- Badrum:
- 3
- Pool:
- Ja
Relaterade fastigheter
Loading...