



































villa
NYBYGGDA VILLOR I FINESTRAT
Alicante, Finestrat, Sierra Cortina
890 000 €
270 m2
3 beds
3 baths
Pool
New Build
Interested in this property?
Get in touch with our team
Om denna fastighet
NYBYGGDA VILLOR I FINESTRAT
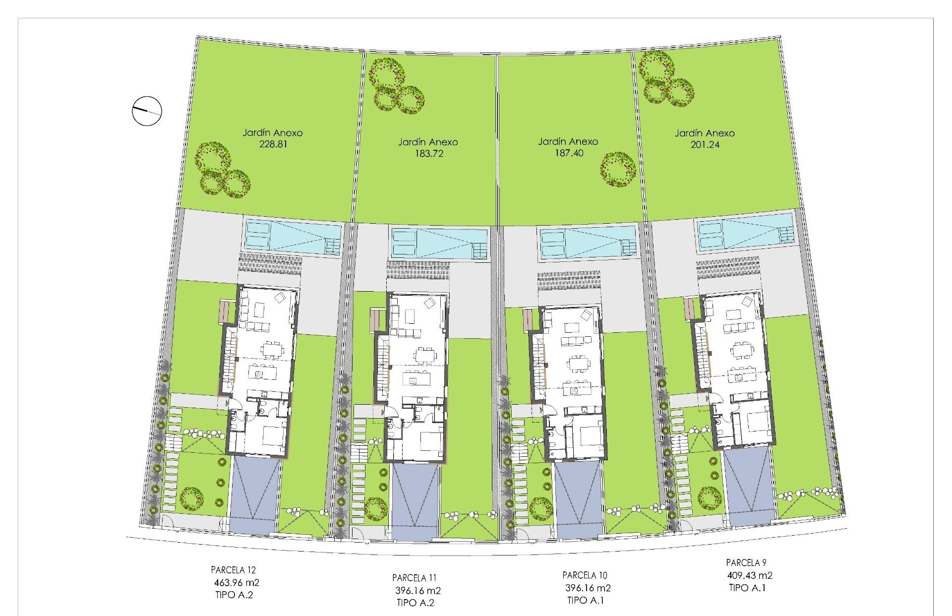
Nybyggt bostadsområde med 9 villor i Finestrat, i Sierra Cortina – en av de bästa urbaniseringarna på Costa Blanca.
Bostäder består av 4 olika typer av bostäder anpassade efter kundernas behov. Vissa av modellerna kommer byggas över 1 eller 2 våningar, med underbyggd, solarium.
Alla villor har 3 sovrum, 2 eller 3 badrum, kök i öppen planlösning med vardagsrum, inbyggda garderober, luftkonditionering och luftvärme, utrustat kök, privat trädgård med pool och parkering.
Bostad beläget i Sierra Cortina resort komplex, bredvid två golfbanor, nöjesparker, ett stort köpcentrum och några minuter från stränderna i Benidorm.
Finestrat ligger i Marina Baixa-regionen på Costa Blanca, nära grannlandet Benidorm och cirka 40 kilometer från staden Alicante och den internationella flygplatsen.
Byn ligger på bergssidan av Puig Campana och erbjuder vacker utsikt över bergen, kusten och Medelhavet.
Fastighetsdetaljer
- Nybyggnation:
- Ja
- Pris:
- 890 000 €
- Typ:
- villa
- Bostadsyta:
- 270 m²
- Sovrum:
- 3
- Badrum:
- 3
- Pool:
- Ja
Relaterade fastigheter
Loading...